Oferujemy Państwu do wynajęcia
nowoczesny budynek biurowy
o łącznej powierzchni 465 m2
w bardzo atrakcyjnym miejscu
Poznania, przy ul. Polskiej 28/30



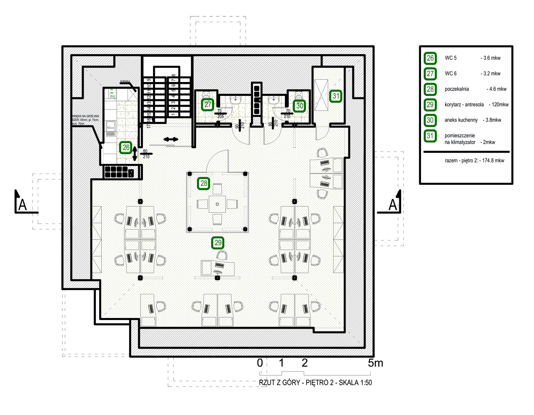
•  465 m2
•  14 miejsc parkingowych
•  3 kondygnacje
•  hol reprezentacyjny
•  sala konferencyjna
•  ogród zimowy
•  41 stanowisk pracy
•  gabinet prezesa
•  6 łazienek
•  4 aneksy kuchenne
•  sieć teleinformatyczna
•  klimatyzacja
•  ogrzewanie gazowe
•  monitoring
•  TV przemysłowa